Mewujudkan Taman Kecil di Lahan Sempit
Mewujudkan taman kecil di rumah dengan lahan sempit bukanlah hal yang mustahil. Kuncinya adalah memanfaatkan setiap sudut dengan bijak dan menyeimbangkan antara fungsi serta estetika. Meskipun ukurannya tidak luas, keberadaan taman mampu memberi kesan segar, alami, dan ramah terhadap lingkungan sekitar.

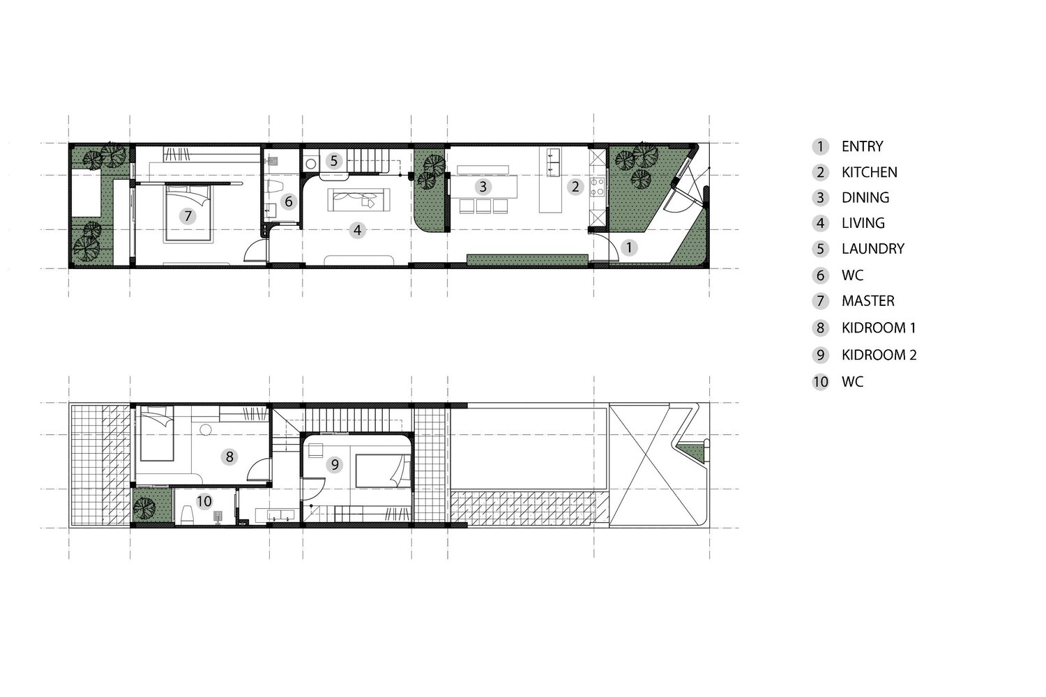
Denah Taman di Rumah
Taman menjadi elemen penting dalam rumah dengan lahan berukuran 4,5 x 23 meter ini. Didesain oleh Da Vang Studio asal Vietnam, taman indoor yang ditemani skylight menyinari interior rumah, sekaligus menambah nilai estetika lewat motif cahaya yang terpantul pada dinding serta lantai rumah.

Fungsi Taman di Rumah
Kehadiran taman kecil juga bisa meningkatkan nilai visual rumah secara keseluruhan. Dengan sedikit kreativitas dan sentuhan desain sederhana, lahan sempit pun dapat berubah menjadi area hijau yang menenangkan dan penuh pesona.
Berikut adalah beberapa fungsi taman di rumah:

Taman Depan
- Taman kecil dapat menjadi penyegar visual.
- Membantu menjaga sirkulasi udara di sekitar rumah.

Sirkulasi Udara di Rumah
- Taman juga berfungsi sebagai peredam panas dan debu dari jalan, sehingga suasana rumah terasa lebih sejuk dan bersih.
Hal yang Harus Diperhatikan Saat Memanfaatkan Lahan Sempit di Rumah
Lahan sempit tetap bisa tampil cantik dan berfungsi optimal. Sebelum mulai membuat taman, ada beberapa hal penting yang perlu diperhatikan agar hasilnya maksimal:

Taman Dalam Rumah
- Ukur dan rencanakan area dengan detail. Pahami luas dan bentuk lahan agar desain taman proporsional.
- Perhatikan arah cahaya matahari. Pilih tanaman yang cocok dengan intensitas sinar di area tersebut.
- Gunakan elemen vertikal. Dinding atau pagar bisa dimanfaatkan untuk taman gantung, rak pot, atau vertical garden.

Taman Dalam Rumah
- Pilih tanaman berukuran kecil. Misalnya lidah mertua, sirih gading, atau tanaman sukulen yang mudah dirawat.
- Gunakan material ringan. Batu koral, paving, atau dek kayu bisa membuat taman terlihat rapi tanpa terasa sesak.
5 Tips Membuat Taman di Rumah dengan Lahan Sempit
Taman kecil bisa dirancang sederhana tapi tetap berkarakter. Dengan perencanaan yang matang, taman mungil di rumah bisa menjadi ruang hijau multifungsi yang menyenangkan. Berikut beberapa tips yang bisa dicoba:

Variasi Tanaman
- Gunakan pot besar sebagai fokus visual. Satu atau dua pot dengan tanaman tinggi sudah cukup memberi kesan seimbang.
- Tambahkan elemen air kecil, seperti pot air mancur mini untuk menciptakan efek relaksasi.
- Manfaatkan warna hijau dengan variasi tekstur. Campurkan tanaman berdaun besar dan kecil agar taman terlihat lebih hidup.

Pencahayaan
- Pasang pencahayaan lembut. Lampu taman kecil dapat membuat area depan rumah tampak hangat saat malam hari.

Pencahayaan
- Minimalkan dekorasi berlebih. Prinsip minimalis tetap menonjolkan ruang kosong dan ketertiban visual.






